Orquesta Desvio

Topic: espacialización

Juan Marco Litrica (2025-03-17T12:37:33):

Foto

Juan Marco Litrica (2025-03-17T12:38:58):

Foto

Juan Marco Litrica (2025-03-17T12:39:39):

Foto

Juan Marco Litrica (2025-04-19T19:06:41):

Foto

Juan Marco Litrica (2025-04-19T19:07:00):
Ubicacion ensayo domingo 13 de abril

Foto
❤ 2

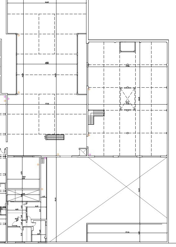
Mariano Ll (2025-04-20T14:17:37):
Belleza estos graficos

Maxi (2025-07-23T19:00:31):

Archivo Adjunto: PLOT ORQUESTA DESVIO.pdf

❤ 2

Maxi (2025-07-23T19:03:19):
editable

Archivo Adjunto: PLOT ORQUESTA DESVIO.psd

👍 1

Maxi (2025-07-23T19:04:53):
avisen si fnciona el editable

👍 1

Juan Marco Litrica (2025-07-23T21:21:22):

Foto
❤ 1

Eugenio Fernández (2025-07-24T10:28:37):
El plano se puede agregar a la difusión o es para consumo personal?

Maxi (2025-07-24T11:26:47):
Para mí las dos cosas. Internamente staría bueno como herramienta para plantear propuestas

👍 1

Juan Marco Litrica (2025-07-24T11:31:25):
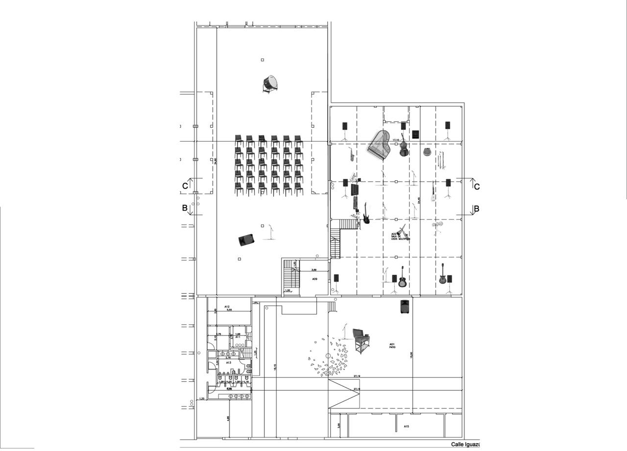
Lo agregamos al programa!!!, pero evidencia algunos procedimientos si loo compartimos público

❤ 1

Maxi (2025-07-24T11:35:07):
Claa

Manuel Ogara (2025-08-03T21:47:00):
Buenas!! ayer se habló entre comida que el publico no copó del todo el centro de tapete para aprovechar la octofonia a pleno, no?. Era un espacio muy de "escena"? Lo digo porque ayer vi que muchos pasaron de planetario a tapete y se amucharon a un costado, despues de a poco fueron pasando y se acomodaron.

❤ 1

Manuel Ogara (2025-08-03T21:48:00):
y una que se me ocurre para porximas presentaciones es copar todo el espacio transitable de cheLA en principio planta baja (tapete, planetario, patios)... la orquesta desparramada por cheLA, nos podemos juntar, separar, transitar, llevar gente, etc

Manuel Ogara (2025-08-03T21:50:29):
volviendo a lo de la octofonia, tambien entiendo que el centro es el espacio donde ocurre el movimiento y la performance y tambien queda cómodamente liberado para eso..., inquietudes

❤ 2

Eugenio Fernández (2025-08-03T22:06:55):
Tengo una inquietud boluda pero que hace a la cuestion amable con el publico, no a la cunnington, si se cobra que sea coca cola imperialista bien posta

❤ 1😁 1

Eugenio Fernández (2025-08-03T22:07:06):
😘😂

Mariano Ll (2025-08-03T22:53:28):
Me copa la inquietud, coincido en que podriamos probar de ponernos nosotrxs x fuera, y que el publico esté en el centro. X ahi poner las sillas en el medio, asi apreciarían a full la octofonía, y eso tmb generaría una situación interesante para hacer acciones alrededor de ellos

❤ 2